±12,920 SF Fully Renovated Shop & Office Building on ±1.08 Acres For Sale
1840 W Sherman Street, Phoenix 85007
PROPERTY HIGHLIGHTS
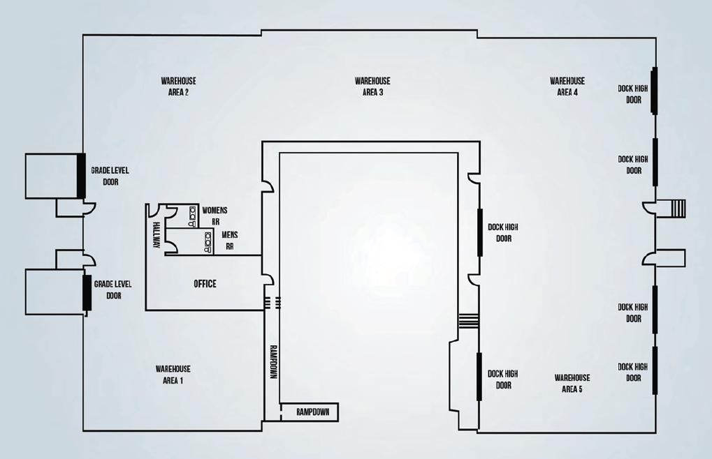
- Large secured yards
- 13’ Clear Height
- Two (2) Ramp to Grade Level Doors
- Six (6) Dock High Doors
- Clear Span Warehouse
- Metal & Block Construction
- 400 AMPS, Single Phase Power (Expandable to 600 AMPS)
- Easy Freeway access (±1.5 miles from I-17, I-10, US-60
FULL 2024 RENOVATION
- New Roof
- New Electrical
- New Plumbing
- New AC & EVAP units
- Insulation
- Office Space
- Fresh Paint
|
Total Square Footage |
Site Size | Zoning |
|
±12,920 SF |
±1.08 Acres |
C-3, General Commercial |
























